浅谈盲窗车盲板制造成本高的原因及解决方法
文/孙春玲,贻旬,靳五令,张路学·奇瑞汽车河南有限公司
对盲窗车盲板生产过程造成的报废率高、人工工时高、盲板需要重复生产加工造成的成本高的问题进行分析,并针对如何解决盲板加工工艺造成的成本高解决方法进行讲解。
现在盲窗车属于市场物流热销车型,为了顺应市场需求,按照法规要求,2018年起所有物流盲窗车不允许载人。为了适应市场需求对某车型进行盲窗改造增加盲板焊接,但是盲窗车生产中滑门、后背门、侧围需要补焊盲板,补焊方式为手工二氧化碳气体保护焊,盲板加工使用手工等离子切割及数控等离子切割。切割过程气体污染严重。手工切割质量差、割渣多、报废率高,需要手工打磨后才能转至焊接工序进行焊接,同时手工二氧化碳气体保护焊效果差,严重影响外观质量。
盲板
某车型盲窗车盲板包含滑门外板盲板、后背门外板盲板、侧围外板盲板。滑门外板盲板、后背门外板盲板需要数控等离子切割机进行加工,侧围外板盲板是使用侧围上段,进行再次手工等离子切割成形。
盲板成本高的直接原因
⑴报废率高。盲板报废率高主要集中在侧围外板盲板使用手工等离子切割,造成切割线不齐、切割后变形、人工操作不到位(图1)等问题。数控等离子切割机在切割下料时会产生金属烟尘、颗粒、弧光、高频辐射等污染,操作工作业时视线不清晰、环境噪声大,人员频繁流动造成员工技能不足等,造成盲板切割质量不达标,切割后变形等问题,综合数据核算其报废率高达20%。

图1 手工等离子切割造成的问题
⑵人工成本高。切割下料过程对操作人员以及周边人员的健康都会造成一定的影响。长时间在等离子烟尘环境下工作的操作人员患慢性支气管炎等呼吸道疾病的几率明显高于其他人员,而且可吸入物质还会堆积在人体的骨骼和血液中,导致人体功能下降。
盲板在与门总成焊接时无法使用标准工装器具及夹具进行定位,只能使用简单的工位器具进行固定,并要求一人手工辅助,另一人进行焊接的方式保证盲板焊接质量(图2),增加了人工成本。同时焊接会对门总成本体产生很大的影响,造成门总成焊接变形等,影响IP5焊装车间匹配、装车等工作。

图2 门总成盲板手工焊接
盲板制造成本高的直接原因及解决办法
盲板成本高的主要原因
⑴生产工艺复杂,工艺过程为等离子切割→打磨→转运至焊装车间→手工二氧化碳焊接。为了解决盲板切割变形、切割不齐等人为因素,我公司把盲板切割设备改为使用水冷加工、数控激光切割机切割、与门外板一体加工等,滑门及后背门盲板现有加工工艺如图3所示。
⑵滑门及后背门、侧围生产过程OP20冲压修边工序将盲板位置板料直接切割成废料,无法利用,材料利用率低,盲板再次进行加工制作造成重复加工成本高。
⑶盲板与门总成需要进行焊接,造成人工成本高,工作效率低,多次转运浪费等问题。同时侧围上部加强板需使用侧围原件进行加工,不能一次成形。造成的成本浪费如图4所示。
盲板成本高的解决办法
在开展问题解决前,对盲窗车市场前景进行分析,在国家新能源政策的支持下,盲窗大空间、大承载电动物流车应运而生,非常适合现有快递运输等物流公司。在工艺方面,采用盲板等离子切割再补焊的生产工艺,生产方式落后,生产效率低下。通过以上问题及市场、工艺分析,发现要想解决盲窗车制造成本高,最佳的方案是在滑门、后背门、侧围外板生产时取消盲板切割工艺,让盲板与门外板一体成形,才能彻底解决盲板制造成本、盲窗车焊接成本、物流成本、辅料及人工浪费成本等。

图3 滑门及后背门盲板现有加工工艺

图4 成本浪费统计
针对盲板与外板一体解决方法,⑴对模具进行如下分析:①对模具OP20/30进行改造,OP20上下模修边刀块拆卸及压料板避空;OP30上模平行块拆卸,下模避空20mm,压料板避空。②后背门盲板直接采取与滑门一样的改进措施。③侧围外板加强板取消,直接使用侧围外板焊接。并对整车进行分析,解决侧围外板与整车焊接干涉问题。同时根据法规要求,取消侧围外板加强筋造型。
⑵对焊接夹具进行如下分析,根据单件外板在焊接夹具上的状态,进行现场分析判定,需要对门外板单件夹具、门总成夹具、侧围主焊线夹具进行改造。把所有与盲板干涉部位的夹紧器取消,在相关联部位增加定位夹紧装置。
⑶对焊接线工位进行如下分析:根据主焊线夹具调整及单件、总成夹具的调整确认主焊线需增加多台焊接机器人。同时进一步需要分析主焊线焊接工位是否需要调整,并根据市场需求同步提升生产线产能,提高生产效率、产品质量。排查分析具体详情存在的技术风险并制定规避风险的方案。
主焊线改造存在的技术风险包括,顶盖焊接工位采用机器人自动焊接技术,机器人稳定性需进一步验证;项目实施涉及侧围线、主焊线多个工位,生产线通过性分析需进一步细化。规避方案包括充分进行技术交流,并在调试安装阶段,针对此问题进行尺寸验证跟踪;对生产线通过性及方案可行性进行充分分析评审,确保方案顺利实施。
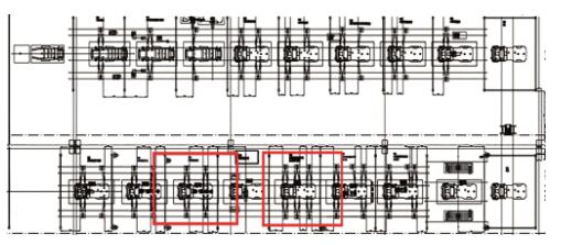
通过风险分析,对主焊线制定规划改造方案,主焊线改造前规划图如图5所示,具体改造实施方案如图6所示。
盲板改造后效果
对主焊线改造后查看单车生产状态及整改后的效果(图7),主焊线通过性验收,生产线验收达标,可进行量产。根据改造后情况进行成本及效率核算,在整车使用成本方面核算见表1。整车生产效率方面,使用的人员减少12人、二保焊机减少3台,编程效率提升20%,如图8所示。
结束语
物流作为连接世界各地的重要纽带,促进了运输行业的发展壮大,盲窗车的发展顺应了市场需求,得到快速增长。同时经过对盲窗车盲板的工艺改造后,盲窗车也成为商用车进入物流行业的排头兵,为企业的发展壮大,以及衔接物流行业起了很好的开端。盲窗车盲板加工制约产能提升,经过此项改造也彻底改变了我们对汽车技术的认知,只有不断的努力,挖掘技术潜力,才能提升自身的竞争力。

图5 主焊线改造前规划图
表1 整车使用成本核算


图6 主焊线改造后规划图
注:标红区域为主焊线机器人改造工位

图7 主焊线改造后效果

图8 整车生产效率
作者简介

孙春玲,主要从事冲压模具工艺开发、模具回厂前预验收,回厂后走线调试,模具动静检问题排查及整改跟踪,同时负责冲压及焊接TPM改进推动,获得河南省QC评审一等奖。



对盲窗车盲板生产过程造成的报废率高、人工工时高、盲板需要重复生产加工造成的成本高的问题进行分析,并针对如何解决盲板加工工艺造成的成本高解决方法进行讲解。现在盲窗车属于市场物流热销车型,为了顺应市场需求,按照法规要求,2018年起所有物流盲窗车不允许载人。为了适应市场需求对某车型进行盲窗改造增加盲板焊接,但是盲窗车生产中滑门、后背门、侧围需要补焊盲板,补焊方式为手工二氧化碳气体保护焊,盲板加工使用手工等离子切割及数控等离子切割。切割过程气体污染严重。手工切割质量差、割渣多、报废率高,需要手工打磨后才能转至焊接工序进行焊接,同时手工二氧化碳气体保护焊效果差,严重影响外观质量。